找回密码
 立即注册

微信扫一扫,快捷登录!

手机号码,快捷登录

手机号码,快捷登录

搜索
关闭
查看: 26|回复: 0

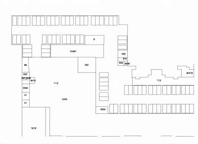
[其他暂未分类的公告] 【业主提供】嘉天下小区北区人防车位分布图

[复制链接]

60

主题

25

回帖

460

积分

超级版主

积分
460
发表于 2023-12-20 18:19:35 | 显示全部楼层 |阅读模式
本帖最后由 小区大喇叭 于 2023-12-20 18:24 编辑 . _; l4 o) V5 k3 _1 j6 b- l0 k

8 W* l5 G+ R4 h0 @1 T4 p2 J0 s9 L此文件非开发商主动公示,为小区热心业主在国土局申请信息公开取得,来源合法
& o' U$ n7 _( ?$ m/ e# Y" A% i3 J- z) Q6 w" a6 x2 ]
1.jpg
) Y# I. q4 A1 [; i$ U$ A

; f$ z. ~* b6 V' G) T% ~3 n 2.jpg " J2 }" r& d  ^$ v$ S' g5 Q/ h* A6 y7 Z

# S0 s7 G. E4 q: a0 C8 v/ i
回复

使用道具 举报

您需要登录后才可以回帖 登录 | 立即注册

本版积分规则

手机版|嘉天下业主自管中心

IP地址位置数据由纯真CZ88提供支持

GMT+8, 2026-2-7 13:18

Powered by Discuz! X3.5

© 2001-2025 Discuz! Team.

快速回复 返回顶部 返回列表